Arhique

PROIECT 001


Amplasament: Câmpulung, jud. Argeș
Funcțiune: Locuință de vacanță
Suparafață teren: 727mp
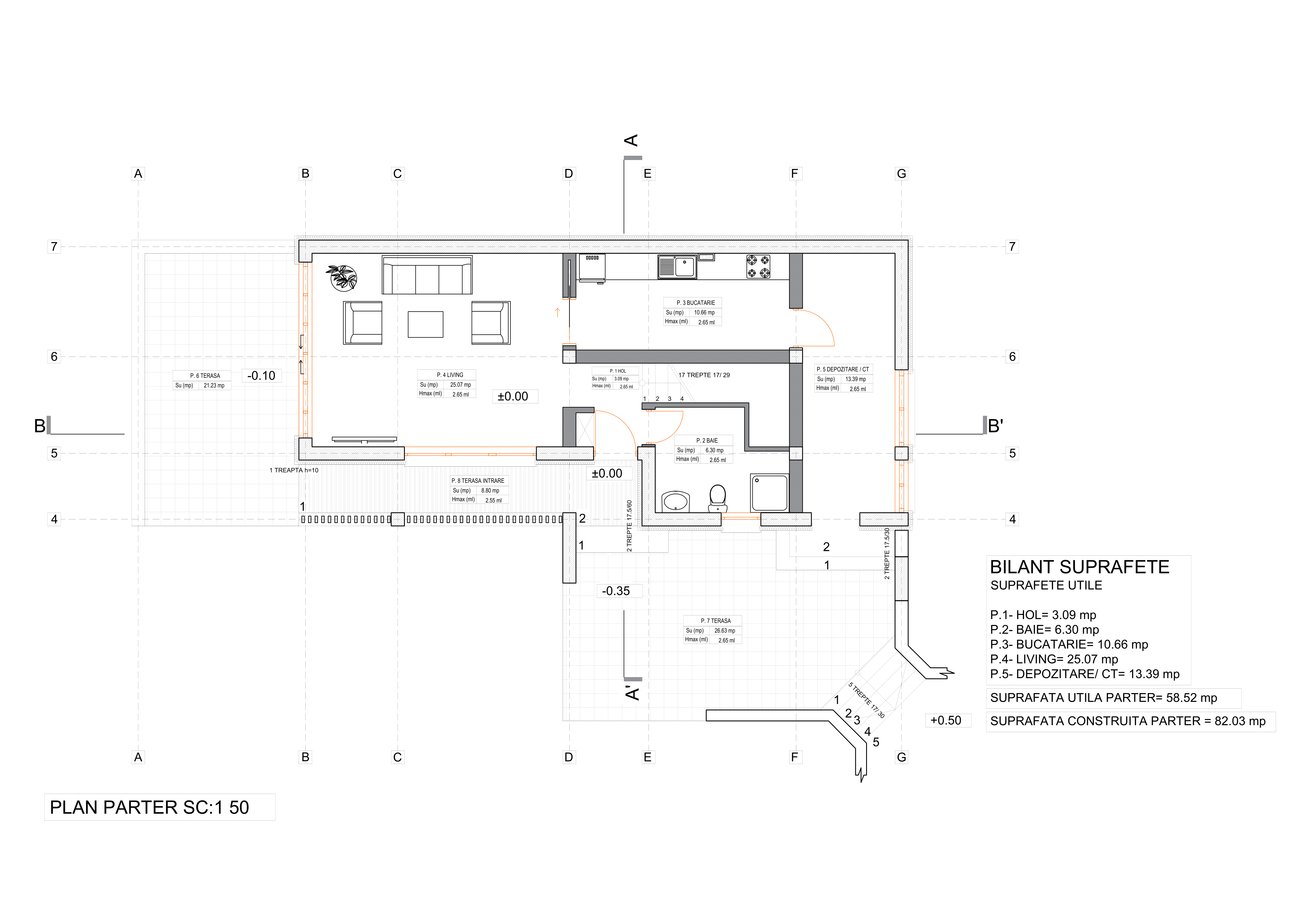
Suprafață construită: 82mp
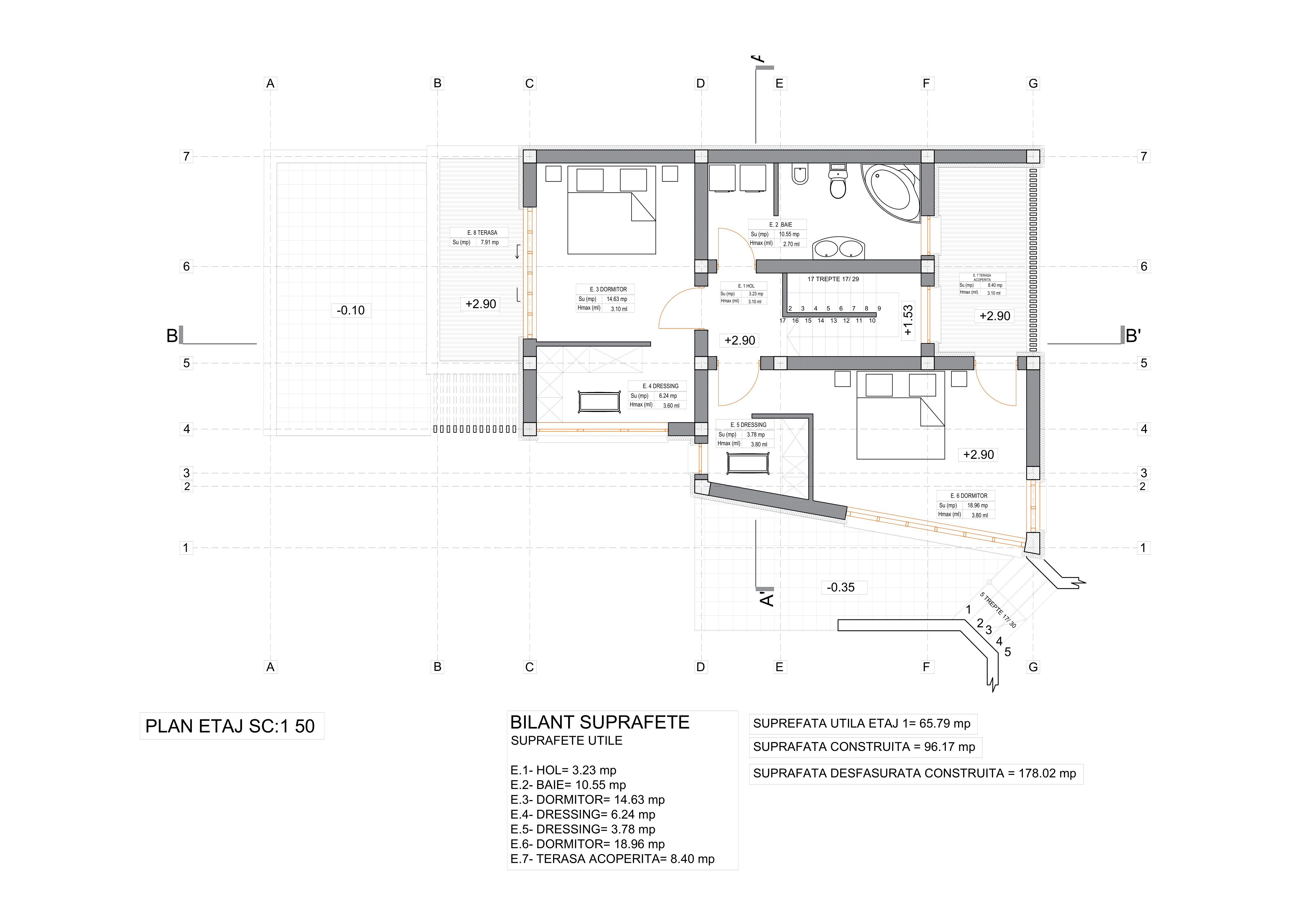
Suprafață construită desfășurată: 178mp
Regim de înălțime: P+1E


Funcțiuni parter

Hol: 3.09mp
Bucătărie: 10.66mp
Living: 25.07mp
Depozitare/CT: 13.39mp
Terasă (descoperită): 21.23mp
Terasă (descoperită): 26.63mp
Terasă acces (descperită): 8.8mp


Funcțiuni etaj 1

Hol: 3.23mp
Baie: 10.55mp
Dormitor: 21.24mp
Dormitor: 23.16mp
Terasă (acoperită): 8.4mp
Terasă (descoperită): 7.91mp